
Sorabako Planning
実際に、空箱“sorabako”を利用した場合のシュミレーション。

ローコストでつくる、コンテナ建築。スモールオフィス/美容室の例

◎将来的に、雇用したスタッフが育ってきた時点で同じ敷地内に20ftコンテナを追加することで、席数を倍増できます。

◎離れコンテナの休憩室の正面(内部を露出)です。タオルなどの洗濯もここで行えます。【色は、自由に選べます】

◎母屋コンテナの奥から店内を眺めた様子です。ゆとりを持って、座れる2座席です。【とても短工期です】

◎離れコンテナと憩いの中庭です。トイレと収納兼給湯室。【コンテナは、木造より1.54倍長寿命*法定】

◎中庭から母屋コンテナを見た風景です。お子様が託児員と中庭で遊ぶことができますね。【災害にも強く安心】

◎中庭全体の様子です。季節感を楽しめ、お客様に味わって頂ける空間です。【移動できる資産です】

◎建物正面から※内部露出。左側の壁の奥は洋服掛けや収納スペースにもできます。【高精度なので高断熱にできます】

◎敷地全体の様子です。標準的な広さの土地で可能なプランです。【強度を活かして屋上も設置可能】

写真のようなコンテナサウナも好評です。アイデア次第のコンテナ建築です。
【空箱“sorabako”/使用例】
『美容室の場合』
美容室の場合のプランです。全工事期間は、着工から概ね3ヵ月強でお引き渡し可能です。
[想定予算]
¥5,500,000~(税込)
◎内装・什器により変動。基礎、確認申請費、電気水道工事別途。
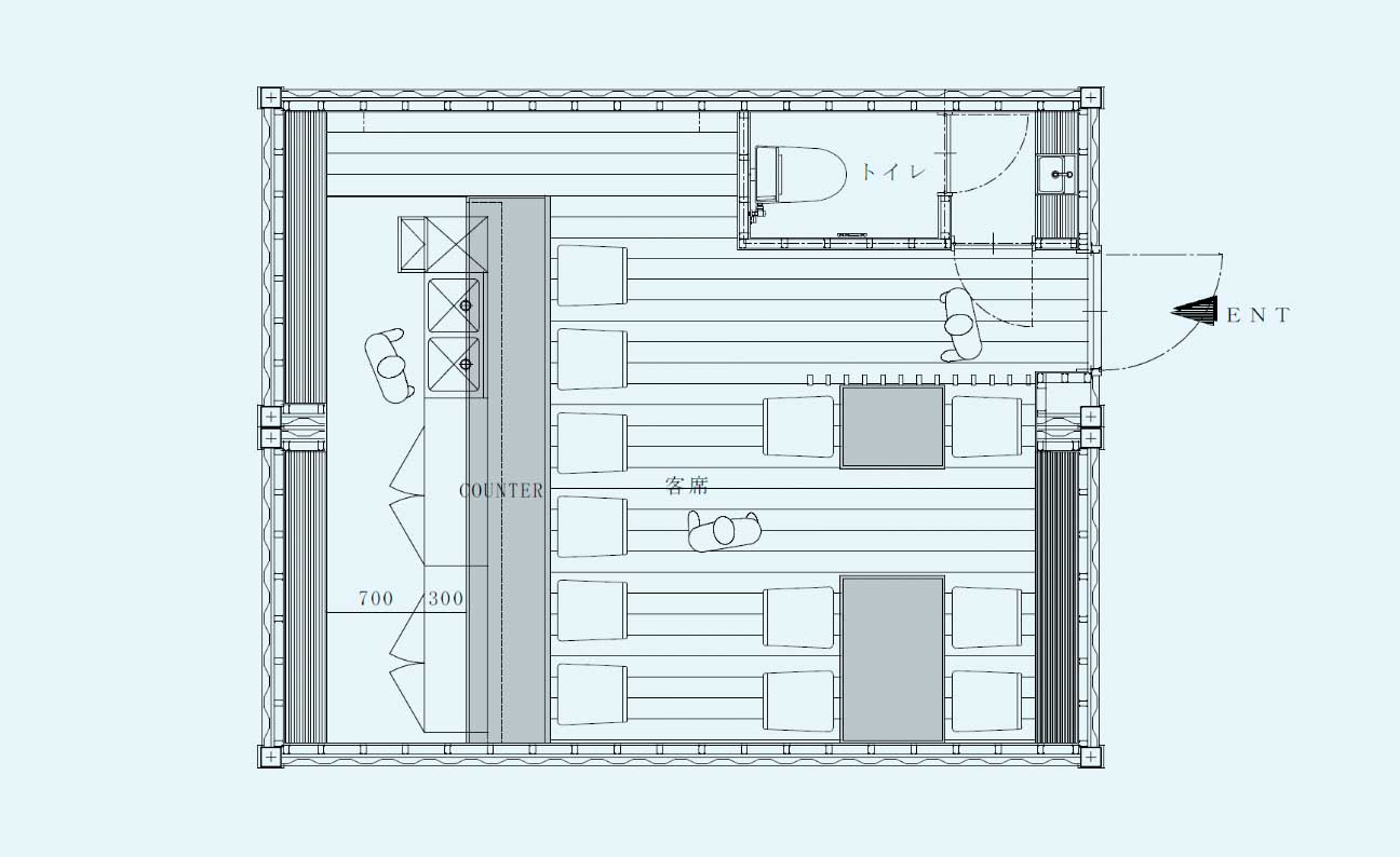
【空箱“sorabako”/使用例】
『飲食店の場合』
◎7シートプラン
飲食店の場合のプランです。全工事期間は、着工から概ね3ヵ月強でお引き渡し可能です。
[想定予算]
¥5,500,000~(税込)
◎内装・什器により変動。基礎、確認申請費、電気水道工事別途。
◎12シートプラン
飲食店の場合のプランです。全工事期間は、着工から概ね3ヵ月強でお引き渡し可能です。
[想定予算]
¥8,880,000~(税込)
◎内装・什器により変動。基礎、確認申請費、電気水道工事別途。